
Unique Opportunity for Self-Builders or Investors in Valencia – Poble Nou
A property with outstanding full renovation potential is now available, ideal for creating a distinctive home in a location with strong identity and increasing demand, just a 18-minute drive from Valencia city center (El Carmen district).
Key features:
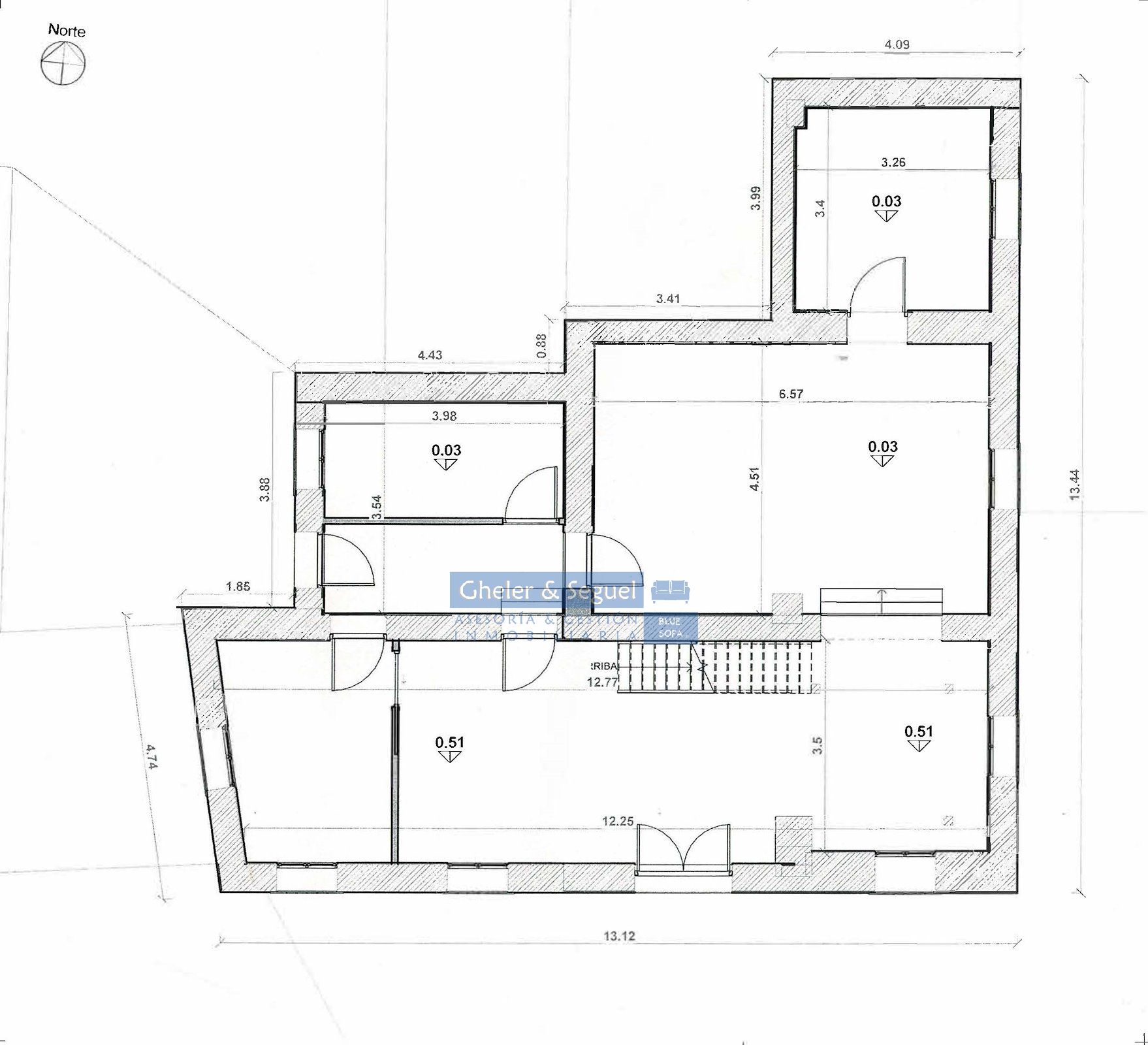
• Plot size: 318 m²
• Built area: 241 m²
• Original building from 1890, with architectural character
• Approved project, allowing works to continue without delays or administrative complications
One of the main advantages of this asset is that a significant part of the technical process has already been completed, substantially reducing development time and urban planning uncertainty.
The plot size and built volume offer the possibility to design a highly attractive project, combining original elements with contemporary design, aligned with current trends in character-driven renovation.
Ideal for:
• Self-builders looking to design their home more efficiently
• Investors seeking a clear and promising opportunity
Additional documentation is available to support decision-making:
• Project documentation
• Construction cost estimate
• Visual proposal of the final result
Main characteristics:
• House / building for renovation
• Plot: 318 m²
• Built area: 241 m²
• Year of construction: 1890
• Approved project
• High potential for value appreciation
An opportunity to transform a historic property into a modern product, with the key advantage of starting from an already defined project.
46025 VALENCIA
Referencia
C-201
